西馬橋1-22-51 中古戸建

2,990万円

千葉県松戸市西馬橋1丁目22-51

常磐緩行線「馬橋」駅徒歩12分

常磐緩行線「新松戸」駅徒歩17分

流鉄流山線「幸谷」駅徒歩17分

価格
2,990万円
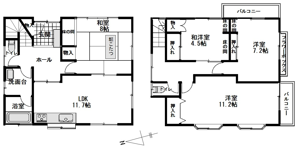
間取り/建物面積
4LDK/109.30㎡
所在地
千葉県松戸市西馬橋1丁目22-51
築年
1993年11月(築32年)
駐車
交通

常磐緩行線馬橋」駅 徒歩12分

常磐緩行線新松戸」駅 徒歩17分

流鉄流山線幸谷」駅 徒歩17分

西馬橋1-22-51 中古戸建の基本情報

物件名
西馬橋1-22-51 中古戸建
価格
2,990万円
建物面積
109.30㎡
土地面積
39.41坪(130.30㎡)
築年月
1993年11月(築32年)
総戸数
-
所在地
千葉県松戸市西馬橋1丁目22-51
交通

常磐緩行線馬橋」駅 徒歩12分

常磐緩行線新松戸」駅 徒歩17分

流鉄流山線幸谷」駅 徒歩17分

西馬橋1-22-51 中古戸建の詳細情報

設備条件
  • 閑静な住宅地
設備(その他)
    -
駐車場/月額
有/0円
土地権利
所有権
国土法届出
不要
用途地域
第一種住居
取引態様
売主
引渡し
即時

西馬橋1-22-51 中古戸建で募集中の物件

  1. 33.06坪 (109.30㎡)

    2,990万円(90.44万円/坪)

周辺施設

  • セブンイレブン 松戸西馬橋2丁目店の画像

    コンビニエンスストア

    セブンイレブン 松戸西馬橋2丁目店

    133m(2分)

  • 松戸市立馬橋小学校の画像

    小学校

    松戸市立馬橋小学校

    346m(5分)

  • 松戸ひばり保育園の画像

    保育園

    松戸ひばり保育園

    426m(6分)

  • 新松戸南公園の画像

    公園

    新松戸南公園

    505m(7分)

  • 新松戸幼稚園の画像

    幼稚園

    新松戸幼稚園

    609m(8分)

  • アコレ 新松戸3丁目店の画像

    スーパー

    アコレ 新松戸3丁目店

    655m(9分)

  • 新松戸南郵便局の画像

    郵便局

    新松戸南郵便局

    666m(9分)

  • 松戸市立新松戸南中学校の画像

    中学校

    松戸市立新松戸南中学校

    706m(9分)

近隣の物件

  1. 松戸市常盤平双葉町

    3LDK (96.35㎡)

    4,990万円

  2. 松戸市千駄堀

    2SLDK (70.17㎡)

    3,500万円

  3. 松戸市中和倉

    3LDK (96.41㎡)

    3,880万円

  4. 松戸市栄町1丁目

    3SLDK (103.91㎡)

    3,399万円

西馬橋1-22-51 中古戸建

お気軽にお問い合わせください

LINEからお問い合わせ 無料お問い合わせ

株式会社日本アイディアル不動産

0120-117-336

10:00~20:00

(休:不定)