西馬橋1-22-51 中古戸建

2,990万円

千葉県松戸市西馬橋1丁目22-51

常磐緩行線「馬橋」駅徒歩12分

常磐緩行線「新松戸」駅徒歩17分

流鉄流山線「幸谷」駅徒歩17分

価格
2,990万円
間取り
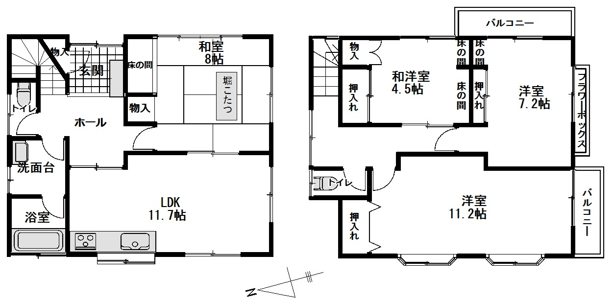
4LDK
土地面積
130.30㎡
所在地
千葉県松戸市西馬橋1丁目22-51
交通

常磐緩行線馬橋」駅 徒歩12分

常磐緩行線新松戸」駅 徒歩17分

流鉄流山線幸谷」駅 徒歩17分

建物面積
109.30㎡
築年月
1993年11月(築32年)

物件の特徴

  • バストイレ別

  • 室内洗濯機置場

セールスポイント

■売主物件の為、仲介会社を通さず直接相談可能!
■子育て世帯にも安心の小中学校至近!ファミリー世帯にもおススメです!
■商業施設・教育施設が揃った生活利便性の高い住環境!
■エアコン2台付いてるので、快適に内覧できます。

基本情報

販売戸数
-
総戸数
-
間取り / 詳細
4LDK
LDK 11.7帖/和室 8.0帖/洋室 7.2帖/洋室 4.5帖/洋室 11.2帖
向き
-
建物面積(坪数)
109.30㎡(33.06坪)
土地面積(坪数)
130.30㎡(39.41坪)
建ぺい率 /
容積率
60%/200%
築年月
1993年11月(築32年)
駐車場 /
月額料金
有 0円
土地権利
所有権
土地
(敷金 / 保証金)
- / -
建物構造
木造(一部木造) / 2階建
傾斜地部分面積
-
路地状敷地
-
私道負担面積
230.00㎡
セットバック
高圧線下面積
-
施工会社
-
用途地域
第一種住居
地目 / 地勢
宅地 / 平坦
接道状況
一方(南東 私道 5.0m 間口 3.2m)
国土法届出要否
不要
都市計画
市街化区域
総区画数 /
販売区画数
-/-
現況
空家
その他
法令上の制限
景観法/高度地区/第22条区域
取引態様
売主
引渡し
即時
リフォーム
    2025年7月
    キッチン 浴室 トイレ 壁 堀こたつ、照明交換、TVインターホンを追加。
取引条件の
有効期限
2025年12月18日

設備条件

設備条件
  • 閑静な住宅地 / リフォーム済 / 新婚さん向け / ファミリー向け / キャンペーン / 室内洗濯機置場 / フローリング / バルコニー / 都市ガス / 公営水道 / 公共下水 / 電気有 / 2面バルコニー / ガスコンロ / コンロ2口以上 / コンロ3口 / バス・トイレ別 / 追焚機能浴室 / 洗髪洗面化粧台 / トイレ2ヶ所 / 浴室1坪以上 / 床下収納
設備(その他)
    -

その他

物件番号
94766383
管理コード
-
建築確認番号
-
情報更新日
2025年12月04日
次回更新予定日
2025年12月18日
取扱会社
  • 株式会社日本アイディアル不動産
  • 千葉県柏市桜台1-1 サクラヒルズ 201
  • TEL:0120-117-336
  • 千葉県知事 (2) 第17554号

周辺施設

  • セブンイレブン 松戸西馬橋2丁目店の画像

    コンビニエンスストア

    セブンイレブン 松戸西馬橋2丁目店

    133m(2分)

  • 松戸市立馬橋小学校の画像

    小学校

    松戸市立馬橋小学校

    346m(5分)

  • 松戸ひばり保育園の画像

    保育園

    松戸ひばり保育園

    426m(6分)

  • 新松戸南公園の画像

    公園

    新松戸南公園

    505m(7分)

  • 新松戸幼稚園の画像

    幼稚園

    新松戸幼稚園

    609m(8分)

  • アコレ 新松戸3丁目店の画像

    スーパー

    アコレ 新松戸3丁目店

    655m(9分)

  • 新松戸南郵便局の画像

    郵便局

    新松戸南郵便局

    666m(9分)

  • 松戸市立新松戸南中学校の画像

    中学校

    松戸市立新松戸南中学校

    706m(9分)

支払いシミュレーション

月々の支払額
9.6
購入希望物件価格
万円
頭金
万円
金利
%
返済額(ボーナス1回分)
万円
返済期間

※ボーナスは自動で年2回分で計算されます。

近隣の物件

  1. 角地37坪 リフォーム済 北松戸駅

    松戸市栄町1丁目

    4LDK (111.37㎡)

    3,580万円

  2. 中古戸建 松戸市三矢小台3丁目

    松戸市三矢小台3丁目

    4LDK (94.39㎡)

    3,150万円

  3. 中古戸建 松戸市秋山

    松戸市秋山

    6LDK (132.20㎡)

    4,780万円

  4. 中古戸建 松戸市小金原2丁目

    松戸市小金原2丁目

    4LDK (94.19㎡)

    2,180万円

西馬橋1-22-51 中古戸建

西馬橋1-22-51 中古戸建

2,990万円

-

4LDK(109.30㎡)

お気軽にお問い合わせください

LINEからお問い合わせ 無料お問い合わせ

株式会社日本アイディアル不動産

0120-117-336

10:00~20:00

(休:不定)