オーベル柏の葉ヒルズ四番館

11月4日 値下げ

4,980万円

千葉県柏市花野井720-5

つくばエクスプレス「柏の葉キャンパス」駅徒歩11分

価格
4,980万円
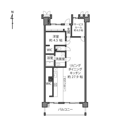
間取り
1LDK+S(納戸)
向き
所在地
千葉県柏市花野井720-5
交通

つくばエクスプレス柏の葉キャンパス」駅 徒歩11分

専有面積
86.20㎡
築年月
2007年8月(築18年)

物件の特徴

  • バストイレ別

  • TVモニタ付きインターホン

  • 浴室乾燥機

  • オートロック

  • エレベーター

セールスポイント

徒歩11分の場所に柏市立田中小学校があります。システムキッチン付きの物件です。防犯カメラが付いており、安全面も配慮されています。もしもの事態を抑止する、オートロック機能が備わっています。不動産に関することは日本アイディアル不動産にお尋ね下さい。経験豊富な当社スタッフが、しっかりとお客様をサポート致します。

ポイント

浴室乾燥機 洗髪洗面化粧台 システムキッチン 駐輪場 バルコニー

担当者のコメント

徒歩11分の場所に柏市立田中小学校があります。癒しと安らぎを求めるなら、1SLDKの間取り。専有面積86.2平方メートルですので快適な生活ができます。24時間ゴミ出し可能なので、ゴミの収集日を把握しなくても好きなタイミングで捨てられます。当社は経験豊富なプロのスタッフが在籍しているので、安心して住まい探しをお任せください。失敗したくない不動産購入だからこそ、プロに任せてはいかがでしょうか。

基本情報

管理費
14,300円
修繕積立金
20,910円
修繕積立基金
-
間取り / 詳細
1LDK+S(納戸)
LDK 27.9帖/洋室 4.5帖/S 6.3帖
向き
専有面積
86.20㎡
バルコニー面積
12.54㎡
その他面積
-
-
-
所在階 / 階建て
3階 / 7階建
建物構造
鉄筋コンクリート
築年月
2007年8月(築18年)
種別
中古マンション
土地権利
所有権
土地
(敷金 / 保証金)
- / -
国土法届出要否
不要
接道状況
-
用途地域
第一種住居
地勢
-
都市計画
-
現況
居住中
引渡し
相談
取引態様
仲介
棟総戸数
73戸
管理形態
管理会社に全部委託
管理会社 /
管理組合有無
大成有楽不動産株式会社 / -
取引条件の
有効期限
2025年11月20日

設備条件

設備条件
  • ペット相談 / ペット飼育可 / フローリング / バルコニー / エレベーター / 駐輪場 / バイク置場あり / IHクッキングヒーター / システムキッチン / バス・トイレ別 / 浴室乾燥機 / 洗髪洗面化粧台 / ウォークインクロゼット / ウォークインシューズクロゼット / トランクルーム / 食品庫 / 収納豊富 / オートロック / TVモニタ付インターホン / 宅配ボックス / 防犯カメラ / 24時間ゴミ出し可
設備(その他)
    -

その他

物件番号
94012720
管理コード
-
建築確認番号
-
情報更新日
2025年11月06日
次回更新予定日
2025年11月20日
備考
徒歩11分の場所に柏市立田中小学校があります。雨の日で濡れた上着や傘もすぐに乾燥できる、浴室乾燥機付きの物件です。共有部分も清潔感があり、綺麗な中古マンションです。柏市での暮らしを、日本アイディアル不動産が取り扱うつくばエクスプレス柏の葉キャンパス周辺のお住まいで手に入れましょう。お電話は、0120-117-336までお問い合わせ下さい。

周辺施設

  • ファミリーマート 柏大室店の画像

    コンビニエンスストア

    ファミリーマート 柏大室店

    540m(7分)

  • 柏田中郵便局の画像

    郵便局

    柏田中郵便局

    611m(8分)

  • FOODS MARKET Selection(フーズマーケット セレクション) 花野井店の画像

    スーパー

    FOODS MARKET Selection(フーズマーケット セレクション) 花野井店

    623m(8分)

  • Olympic(オリンピック) 柏花野井店の画像

    ホームセンター

    Olympic(オリンピック) 柏花野井店

    754m(10分)

  • 柏市立田中小学校の画像

    小学校

    柏市立田中小学校

    847m(11分)

  • 三井ショッピングパーク ららぽーと柏の葉の画像

    ショッピングセンター

    三井ショッピングパーク ららぽーと柏の葉

    919m(12分)

支払いシミュレーション

月々の支払額
9.6
購入希望物件価格
万円
頭金
万円
金利
%
返済額(ボーナス1回分)
万円
返済期間

※ボーナスは自動で年2回分で計算されます。

近隣の物件

  1. ルネサンス南柏駅前

    柏市南柏1丁目

    3LDK (85.47㎡)

    5,180万円

  2. 光ヶ丘第3エステート1号棟

    柏市東中新宿4丁目

    3LDK (78.32㎡)

    780万円

  3. モアステージ新柏弐番館

    柏市名戸ケ谷1丁目

    3LDK (70.53㎡)

    2,490万円

  4. カルム北小金

    柏市東中新宿1丁目

    3LDK (70.75㎡)

    1,890万円

オーベル柏の葉ヒルズ四番館

オーベル柏の葉ヒルズ四番館

4,980万円

14,300円

1LDK+S(納戸)(86.20㎡)

お気軽にお問い合わせください

LINEからお問い合わせ 無料お問い合わせ

株式会社日本アイディアル不動産

0120-117-336

10:00~20:00

(休:不定)